04 67 15 53 61
53 allée Jacques Brel - 34470 PEROLS

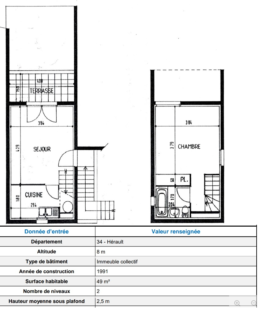
PEROLS CENTRE T2 DE 49m² EN DUPLEX RESIDENCE L'HACIENDA


< Retour

Partager sur

gallery loader

Appartement 49 m² - 3 Pièces - Pérols 760,60 € CC*


Description de l'offre Ref loc hacienda 14


Pérols centre, résidence sécurisée l'hacienda, au 1er et dernier étage appartement de type 2 en duplex avec 1 place de parking, séjour lumineux ouvrant sur balcon (6 m²) avec vue dégagée, cuisine semi équipée indépendante, chambre avec placard, salle de bains avec baignoire. loyer mensuel de 760.60€ dont 30€ de charges avec régularisation annuelle inclus caution 700€ honnoraires d'agence 650€.Libre à partir du 1er janvier 2026 Pour tous renseignement contactez Franck STEF au 06x08x49x27x63

Diagnostics de performance énergétique


DPE
DPE
DPE ANCIENNE VERSION

Descriptif du bien


Code postal 34470


Surface habitable (m²) 49 m²


Surface loi Boutin (m²) 43 m²


Nombre de chambre(s) 1


Nombre de pièces 3


Meublé NON


Etage 1


Nombre de niveaux 2


Ascenseur NON


Vue dégagée


Nb de salle de bains 1


Nb de salle d'eau 1


Cuisine SEPAREE


Type de cuisine SEMI-EQUIPEE


Mode de chauffage Electrique


Type de chauffage Convecteur


Format de chauffage Individuel


Murs mitoyens 1


Exposition OUEST


Année de construction 1991


Quartier Calme


Copropriété OUI


Loyer CC* / mois 760,60 €


Honoraires TTC charge locataire 650 €


Dont état des lieux 147 €


Dépôt de garantie TTC 700 €


Charges locatives (Previsionnelles mensuelles les avec regularisation annuelle) 30 €


Cette annonce vous intéresse ?


* Champs obligatoires

* : Les informations recueillies sur ce formulaire sont enregistrées dans un fichier informatisé par La Boite Immo agissant comme Sous-traitant du traitement pour la gestion de la clientèle/prospects de l'Agence / du Réseau qui reste Responsable du Traitement de vos Données personnelles.
La base légale du traitement repose sur l’intérêt légitime de l'Agence / du Réseau.
Elles sont conservées jusqu'à demande de suppression et sont destinées à l'Agence / au Réseau.
Conformément à la loi « informatique et libertés », vous pouvez exercer votre droit d'accès aux données vous concernant et les faire rectifier en contactant l'Agence / le Réseau.
Si vous estimez, après avoir contacté l'Agence / le Réseau, que vos droits « Informatique et Libertés » ne sont pas respectés, vous pouvez adresser une réclamation à la CNIL.
Nous vous informons de l’existence de la liste d'opposition au démarchage téléphonique « Bloctel », sur laquelle vous pouvez vous inscrire ici : https://www.bloctel.gouv.fr 
Dans le cadre de la protection des Données personnelles, nous vous invitons à ne pas inscrire de Données sensibles dans le champ de saisie libre
Ce site est protégé par reCAPTCHA, les Politiques de Confidentialité et les Conditions d'Utilisation de Google s'appliquent.

* CC : Charges comprises